Description
Bord du lac des Deux R avec plage de sable : vivez la vraie vie de chalet, déjà prête à louer grâce au permis CITQ actif. Terrain de plus de 24 000 pi². 3 chambres, 1 salle de bain et 1 salle d'eau. Vendue entièrement meublée (meubles, électros, literie, vaisselle), avec véranda vitrée côté lac, salon avec foyer au gaz et immense salle familiale au rez-de-jardin. Été comme hiver : baignade, paddle, canot, rando, ski de fond/alpin tout près. Garage et plusieurs terrasses complètent le tout. Contactez-moi pour une visite !
Bienvenue au 56 ch. Paquette, à Val-des-Lacs (Laurentides),
une adresse recherchée pour sa tranquillité, son accès
facile et son ambiance quatre saisons. Situé à environ 1h30
de Montréal, ici, tout est en place pour profiter
immédiatement de la vie au bord de l'eau ou pour prendre la
relève d'une activité locative déjà structurée : la
propriété dispose d'un permis CITQ actif et la location
court terme est permise par le zonage. La vente inclut un
ameublement complet : meubles, électroménagers, literie et
vaisselle -- un véritable clé en main.
Le terrain d'environ 24 965 pi² est bordé par le lac des
Deux R et se distingue par sa plage de sable privée, idéale
pour la baignade, le paddle board, le canot et les jeux en
famille. Le plan d'eau est non navigable (sans moteur), ce
qui assure une quiétude exceptionnelle et met en valeur la
vue panoramique sur le lac et la montagne. La topographie
alterne secteurs plats et en pente, sans voisin à
l'arrière. Trois galeries/terrasses permettent de suivre le
soleil toute la journée; la véranda vitrée côté lac
prolonge la saison du café de matin jusqu'aux soirées
d'automne.
La maison de plain-pied, construction 1980, offre une aire
de vie lumineuse à l'étage : salon chaleureux avec foyer au
gaz, salle à manger conviviale et cuisine fonctionnelle
avec garde-manger. La salle de bains propose douche
indépendante et bain sur pattes. Deux chambres se trouvent
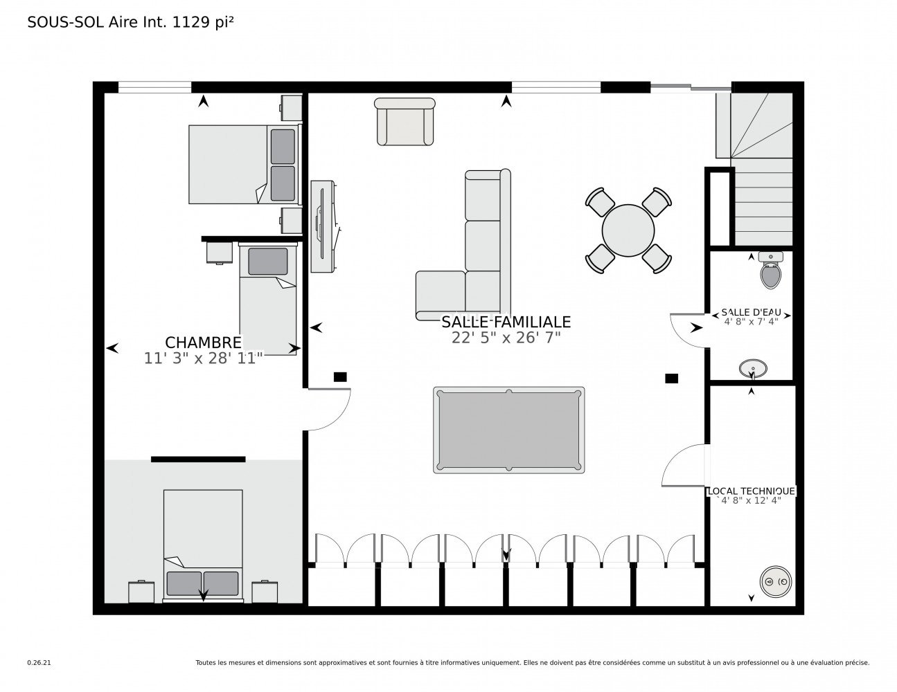
au rez-de-chaussée. En contrebas, le rez-de-jardin s'ouvre
sur le lac : une immense salle familiale avec porte-patio
mène à la terrasse et à la pelouse; on y retrouve aussi une
troisième chambre, une salle d'eau et la salle mécanique.
Cet étage au contact du terrain est parfait pour les
séjours de groupe et, en mode locatif, pour une circulation
fluide des invités. Un garage attaché (simple largeur) et
une allée double complètent l'ensemble.
Au quotidien comme en villégiature, l'adresse donne accès à
un terrain de jeu grandeur nature : randonnée, vélo, pêche,
ski de fond et ski alpin à proximité. La grande salle
familiale devient le coeur des rassemblements après les
activités; la véranda se transforme en salle à manger
panoramique; la plage appelle les baignades au coucher du
soleil. Côté pratique : Starlink est installé et la fibre
est rendue à la maison (à raccorder). Quand l'envie vous
prend de bouger, mettez une embarcation à l'eau; pour les
soirées, profitez d'un espace feu de bois et d'un foyer au
propane.
Informations additionnelles utiles pour l'acheteur : Les
inclusions portent notamment sur les meubles, électros,
literie, vaisselle, la table de billard, le foyer propane
extérieur, l'ensemble de patio, la véranda et les
habillages de fenêtres; le réservoir de propane demeure. La
vente est faite avec garantie légale.
Que vous cherchiez un refuge familial prêt à vivre ou un
actif locatif immédiatement opérationnel grâce à la CITQ,
cette propriété coche les essentiels : bord de l'eau, plage
privée, véranda panoramique, 3 chambres,